
70 m² Landhaus
Le TholyNeues ruhiges Gîte nahe Gérardmer mit Terrasse und Waldwanderungen
Le Tholy
Objekt:
- Cottage
- 70m2
- 2
- 3
- 6
- Haustiere: nein
Ausstattung:
Beschreibung
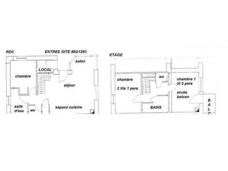
Neue Gîte, ruhig gelegen mit Blick auf die Berglandschaft, 600 Meter über dem Meeresspiegel. Der Innenraum ist funktional und gut ausgestattet. Sie werden die Nähe des Waldes und der Wanderwege für schöne Spaziergänge zu schätzen wissen. 10 km von Gérardmer entfernt, der Perle der Vogesen, berühmt für ihren See und ihr Skigebiet La Mauselaine. Für Ihren Urlaub mit Familie oder Freunden können die beiden Ferienhäuser zusammen gemietet werden, für eine Kapazität von 12 Personen. Gîte mit separatem Eingang. Erdgeschoss und 1. Stock: 3 Schlafzimmer (2 Doppelbetten, 2 Einzelbetten, Babybett). Küche offen zum Wohnzimmer. Badezimmer, Duschraum, 2 Toiletten. Terrasse. Boden. Kleiner geschlossener Außenlagerraum. Nebenkosten nicht inbegriffen, Elektroheizung, mehr als 8 kW inklusive/Tag, laut Zählerstand je nach Verbrauch (Schätzpreis 5 bis 40 €/Woche je nach Saison). Obligatorische Reinigungsgebühr für die Vermietung an Gewerbetreibende (Unternehmen) in Höhe von 60 €. OPTIONEN: Bettwäsche 8 € pro Bett, Handtücher 8 € pro Person, Reinigung 60 €. Angrenzend an ein weiteres Ferienhaus für 6 Personen Nr. H88G002277.
Unterkünfte, die nicht als Tourismus- und Behindertenunterkunft gekennzeichnet sind. Duschbad, WC und ein Schlafzimmer im Erdgeschoss.
Vor Ort beim Eigentümer
Optionale Leistungen, die vor Ort bezahlt und vor Ihrer Ankunft reserviert werden müssen:
- Handtücher: 8,51 € pro Person und Aufenthalt
Von einem Fachmann verwaltete Immobilie. Sofern nicht anders angegeben, sind Leistungen wie Reinigung, Bettwäsche, Handtücher etc. nicht im Preis für diese Unterkunft enthalten. Wenn Haustiere erlaubt sind (Informationen in der Anzeige), können Zuschläge anfallen.
Nur die Ausstattungen, die in dieser Anzeige speziell erwähnt werden, sind vorhanden. Eine nicht angegebene Ausstattung wird nicht als vorhanden betrachtet. Sofern in der Unterkunft keine Elektroladestation vorhanden ist, ist das Laden von Elektrofahrzeugen untersagt.
Nehmen Sie vom Zentrum von Tholy aus die Rue du Petit Tholy (vor dem Lebensmittelgeschäft) in Richtung College. Fahren Sie geradeaus weiter und biegen Sie an der ersten Kreuzung links ab. Am Friedhof vorbei. Das Haus liegt etwas höher auf der rechten Seite.
Mietbedingung: der Hauptmieter muss mindestens 18 Jahre alt sein
Unterkünfte, die nicht als Tourismus- und Behindertenunterkunft gekennzeichnet sind. Duschbad, WC und ein Schlafzimmer im Erdgeschoss.
Vor Ort beim Eigentümer
Optionale Leistungen, die vor Ort bezahlt und vor Ihrer Ankunft reserviert werden müssen:
- Handtücher: 8,51 € pro Person und Aufenthalt
Von einem Fachmann verwaltete Immobilie. Sofern nicht anders angegeben, sind Leistungen wie Reinigung, Bettwäsche, Handtücher etc. nicht im Preis für diese Unterkunft enthalten. Wenn Haustiere erlaubt sind (Informationen in der Anzeige), können Zuschläge anfallen.
Nur die Ausstattungen, die in dieser Anzeige speziell erwähnt werden, sind vorhanden. Eine nicht angegebene Ausstattung wird nicht als vorhanden betrachtet. Sofern in der Unterkunft keine Elektroladestation vorhanden ist, ist das Laden von Elektrofahrzeugen untersagt.
Nehmen Sie vom Zentrum von Tholy aus die Rue du Petit Tholy (vor dem Lebensmittelgeschäft) in Richtung College. Fahren Sie geradeaus weiter und biegen Sie an der ersten Kreuzung links ab. Am Friedhof vorbei. Das Haus liegt etwas höher auf der rechten Seite.
Mietbedingung: der Hauptmieter muss mindestens 18 Jahre alt sein




































