
55 m² Ferienwohnung
OsterbruchWohnung Obergeschoss
Osterbruch
Objekt:
- Apartment
- 55m2
- 2
- 5
- Haustiere: nein
Ausstattung:
Beschreibung
Der Mieter kann jederzeit vor Mietbeginn von der Vereinbarung zurücktreten. Dies ist aus Gründen der Beweissicherheit schriftlich (Brief, Fax, E-Mail) zu tun. Allerdings sind dann bis zu 14 Tage vor der Anreise 10%, und danach 85% des Mietpreises zu entrichten. Sofern der Mieter aufgrund von staatlichen Corona-Bestimmungen oder eines ärztlichen Attestes stornieren muss, wird der gesamte Betrag zurückerstattet.
Hausinfo
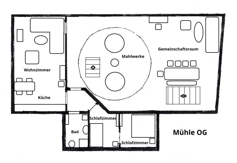
Jeweils eine 55qm große Wohnung befindet sich im Erdgeschoss und im ersten Stock des restaurierten Mühlengebäudes. 2 weitere je 80qm große Gemeinschaftsräume laden ein, den historischen Kern der Mühle mit seinen Mahlwerken und Zahnrädern zu erkunden, gemeinsam zu essen, Tischtennis zu spielen oder einfach nur zu entspannen.
Jede Wohnung hat 2 Schlafzimmer (je eines als Durchgangszimmer), 1 Bad und 1 Wohnzimmer mit Koch- und Essbereich. 4 Betten und 1 Schlafcouch bieten Platz für bis zu 5 Personen pro Wohnung. Auf Wunsch kann ein separates Kinderbett dazugestellt werden.
Direkt an den Terrassenbereich schließt sich ein 1300qm großer Garten sowie ein 1,4ha großes Weidegrundstück. Neben viel Platz zum Spielen für Kind und Hund sind auch Grill, Feuerschale und Stellplätze für mehrere Autos und Fahrräder vorhanden.
Wohnung Erdgeschoss: Rollstuhl - niedrige Türschwellen mit Rollstuhl befahrbar, Toilette etwas eng, bitte anfragen.
Baujahr: 1871
Endreinigung: einmalig 45,00 €
Größe der Ferienwohnung: 55 m²
Frühste Anreise: 15.00 Uhr
Späteste Abreise: 11.00 Uhr
Kinder bis einschließlich 3 Jahre wohnen kostenfrei
Serviceleistungen
Bettwäsche + Handtücher: anmietbar, 12,00 € pro Person und Aufenthalt
Kinderzustellbett: einmalig 20,00 €
Parkplätze kostenfrei auf dem Grundstück: ja
Besonderheiten der Unterkunft
Ferienwohnungen in einer historischen Windmühle. Terrasse, großer Garten, Wiese. Zahlreiche Vogelarten und Wildtiere zu beobachten. 2 Gemeinschaftsräume mit viel Platz, Indoor-Tischtennisplatte, großer Esstisch, Abstellfläche für Räder, Kajaks oder anderes Equipment. Grill, Feuerschale, Gartenmöbel, Liegen, Sonnenschirm, Waschmaschine u.a. zur freien Verfügung. Auch für mehrere Familien/große Personengruppen geeignet: Insges. 3 Ferienwohnungen (Ferienwohnung "Am Schweinskopf" im benachbarten Bauernhaus), Nutzung der Gemeinschaftsräume in der Mühle, der benachbarten Scheune, und des gesamten Außengeländes. Für nähere Infos stehen wir Ihnen gerne zur Verfügung.
Haustier 20€ pro Woche (nur Wohnung im Erdgeschoss).
Stornierungsbedingungen
Der Mieter kann jederzeit vor Mietbeginn von der Vereinbarung zurücktreten. Dies ist aus Gründen der Beweissicherheit schriftlich (Brief, Fax, E-Mail) zu tun. Allerdings sind dann bis zu 21 Tage vor der Anreise 10%, und danach 85% des Mietpreises zu entrichten. Sofern der Mieter aufgrund von staatlichen Corona-Bestimmungen oder eines ärztlichen Attestes stornieren muss, wird der gesamte Betrag zurückerstattet.
Urlaub in einer liebevoll restaurierten Holländerwindmühle inmitten naturreicher Wiesenlandschaft. Ruhe und Entspannung zu zweit, für die ganze Familie oder Gruppen.





























