
Zurück zur Liste Humble Sogn Ferienhaus
147 m² Ferienhaus
Humble SognFerienhaus, 75-1101, Humble
Humble Sogn
Objekt:
- Ferienhaus
- 147m2
- 1
- 4
- 8
- Haustiere: ja
Ausstattung:
Beschreibung
Dieses gemütliche Haus liegt auf einem großen Grundstück, das an einen kleinen Wald und offene Felder angrenzt. Das Haus ist neu renoviert und tritt einladend hervor. Bei der renovierung, die u. a. eine neue Küche und neue Fußböden mit Fußbodenheizung in Wohnzimmer, Badezimmer, Gästetoilette und Diele umfasst, wurde mit respekt auf die Geschichte des Hauses durchgeführt.
In diesem Zusammenhang ist besonders das Dach des Hauses zu erwähnen - denn unmittelbar hinter dem Haus verlief ursprünglich die Eisenbahnlinie nach Bagenkop. Um einen Brand zu verhindern, der durch die Funken der alten Lokomotive entstehen konnte, ist das Haus mit einem Dach aus Eisen versehen. Die alte Eisenbahnstrecke, die noch zum Haus gehört, ist heute Teil des Gartens und führt Sie an die Felder entlang.
Zum Haus gehört ein ca. 800 m² großer eingezäunter Hofplatz und Garten, wobei der Zaun und die Gartentore etwa 1 Meter hoch sind. Darüber hinaus gibt es nochmals die gleiche Fläche Grundstück ohne Einzäunung, jedoch von einer Steinmauer und einer Hecke umgeben.
Es gibt eine gemütlich eingerichtete, überdachte Terrasse mit verschiedenen Aktivitäten und natürlich den schönen Garten.
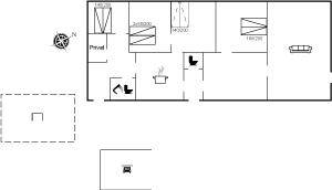
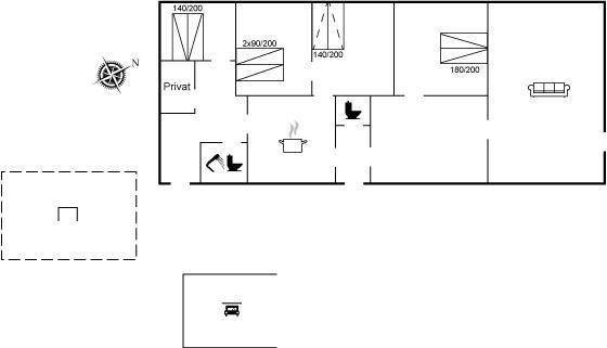
Hinweis: Einzelne Türen sind nicht mehr als ca. 160 cm hoch, da die alten Türen bewahrt wurden. 2 der Schlafplätze befinden sich auf einer Schlafcouch, die in dem Raum steht, durch den man das eine Schlafzimmer betritt (siehe Grundriss).
Dieser ehemalige Bauernhof eignet sich für 8 Personen sowie 1 Kleinkind bis zu 3 Jahren. Die Ferienunterkunft hat eine Wohnfläche von 147 m² und wurde 1817 gebaut. 2022 wurde die Ferienunterkunft renoviert. Es ist erlaubt 2 Haustiere mitzubringen. Die Ferienunterkunft ist mit einer energiefreundlichen Luft-Wasser-Wärmepumpe ausgestattet. Die Ferienunterkunft ist mit Waschmaschine ausgestattet. Tiefkühlmöglichkeit mit 100 Liter Nutzinhalt. Es gibt außerdem einen Kaminofen. Für die jüngsten Feriengäste ist 1 Kinderhochstuhl vorhanden.
DraußenDie Ferienunterkunft liegt auf einem 3000 m² großen Gartengrundstück. Das Grundstück ist eingezäunt. Die Entfernung zum Meer beträgt 2700 m. Die nächste Einkaufsmöglichkeit liegt 4600 m entfernt. In einem Abstand von 2200 m gibt es einen Golfplatz. Es steht ein offenes Terrassenareal zur Verfügung. Außerdem gibt es überdachte Terrasse. Schaukel. Sandkasten. Es steht ein Grill zur Verfügung. Es steht ein Carport zur Verfügung. Parkplatz auf dem Grundstück.
HobbyraumDart. Tischfußball.
SchlafverhältnisseDie Schlafplätze verteilen sich auf 4 Schlafräume. 2 Schlafplätze in einem Doppelbett. 4 Schlafplätze in Einzelbetten. 2 Schlafplätze auf einer Doppelschlafcouch. Ferner steht ein Kinderbett zur Verfügung.
KücheDie Küche ist mit Kühlschrank ausgestattet. Außerdem gibt es 4 Induktions-Kochzonen, Umluftofen, Mikrowelle sowie Geschirrspüler.
WC und BadEs gibt 1 Badezimmer mit Duschnische und 2 Toiletten, davon 1 Gästetoilette. Fußbodenheizung in 1 Badezimmer. Fußbodenheizung in der Gästetoilette.
MultimedienIn der Ferienunterkunft gibt es 1 Fernseher mit Smart-TV.1 Chromecast. 1-3 dänische Fernsehsender. Mindestens 4 deutsche Fernsehsender. Es steht kabellose Internetverbindung zur Verfügung.









































